








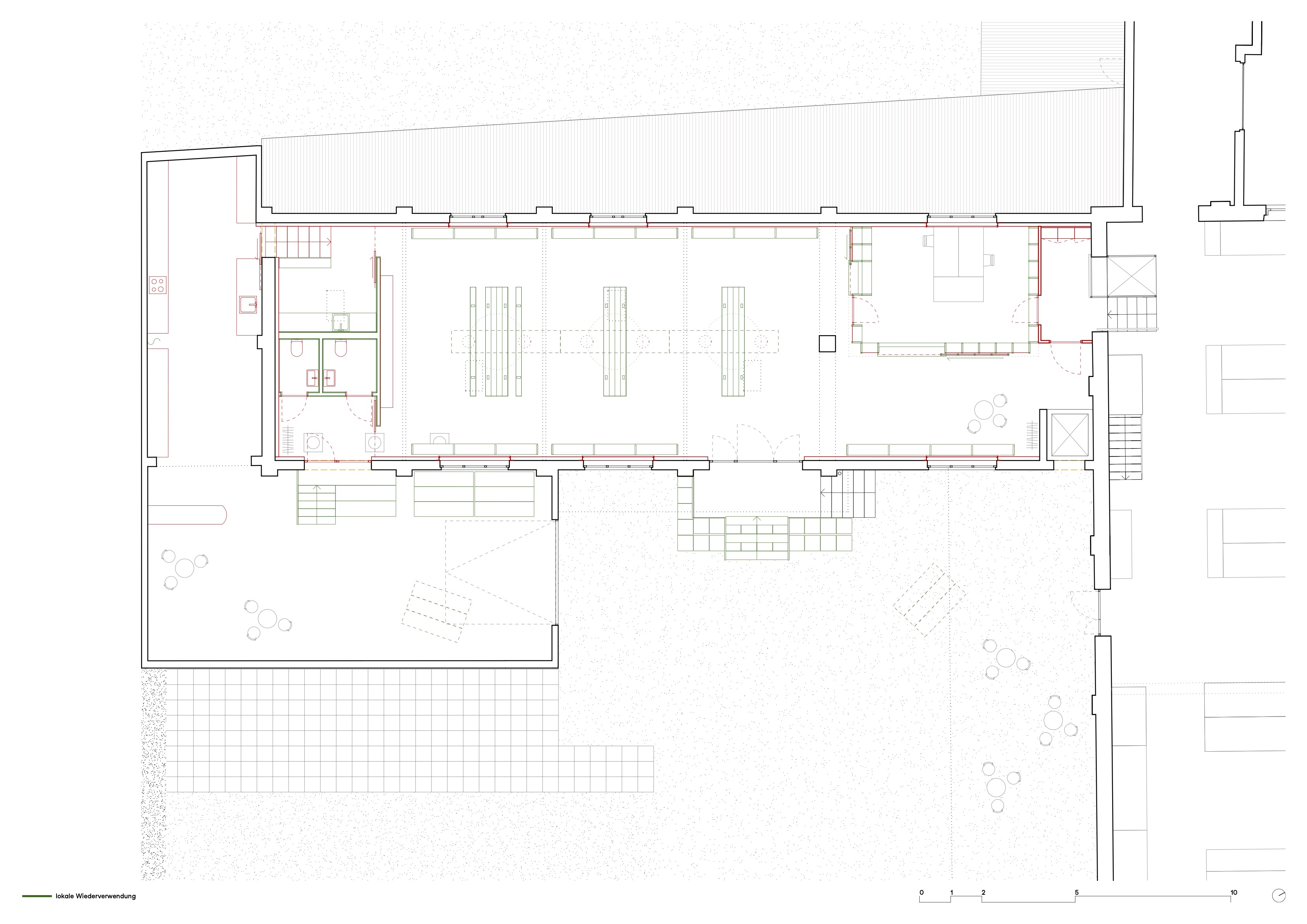
The objective of the vertical extension at Bläsiring 15b was to carefully densify a heritage-listed ensemble without losing the commercial use of the ground floor in the inner courtyard. Working in close coordination with the heritage conservation authorities, a concept was realized that made the preservation of commercial use a mandatory condition to counteract displacement by residential space. Amidst the green courtyard setting, the existing structure was complemented by a timber-frame extension and a delicate layer of balconies. As we carried out all timber construction work ourselves during the eleven-month construction period, this dual role as both designer and craftsman resulted in numerous precise details developed directly on-site. Furthermore, our continuous presence on-site facilitated very close collaboration and a direct exchange with the other trades.
Béla Dalcher, David Moser, Matthias Müller Klug, Alessio De Gottardi
with Heini Dalcher, Samuel Rudin (Opus Holzbau), Vital Feah, Otto De Vylder, Kilian Brumm, Jan Stricker
Landscape: Saum GmbH
Engineering: Schmidt+Partner Bauingenieure AG
Fire protection: Winter + Walther AG
Building physics: Kuster + Partner AG
Contractors: Moritz Gossenreiter, Bloch Bau GmbH, Umbra Pro GmbH, Melo Baumanagement GmbH, Solarmaa GmbH, Billi GmbH, Plan B Boden GmbH, Charles Pellet Glasbau, Mauro Talmani Schreiner, Elektro Löwe GmbH, Mehmetaj Malergeschäft GmbH, Jürg Dalcher, Fenster Schaub Schreinerei GmbH, MK Spenglerei GmbH, Stoica Sanitär- und Heizungsfirma, Zoe Rai Keramik
Photography: Geraldine Recker, Alessio De Gottardi










For the exhibition «Was War Werden Könnte: Experimente zwischen Denkmalpflege und Architektur» 05.04-14.09.2025, we created a spatial sculpture that invites visitors to engage in informal exchange and dialogue about the future of preservation. The installation is a nod to the Kunsthalle Bar, which occupied the same space for nearly two decades (1984–2003).
A centrally placed bar counter, incorporating several books related to the exhibition's themes, both reflects the room’s history and is physically constructed from materials of past exhibition designs. The stools are extended with roof battens and aluminum profiles, while the counter itself is made from leftover carpentry panels from the S AM. Its substructure consists of Plexiglas hoods – repurposed and rotated 90° – originally used as covers for former exhibition tables.
Thierry Vuattoux, Lian Liana Stähelin, David Moser, Luca Bazelli, Béla Dalcher, Alessio De Gottardi, Matthias Müller Klug
for S AM Swiss Architecture Museum
Photography: Philipp Bosshart, Pierre Marmy











The refurbishment of the Enoteca is the centrepiece of a transformation in which the spatial disposition is adapted to the new challenges of the winery. Founded in 1950, the winery has undergone a period of gradual expansion, adding facilities as needed without extensive long-term planning. The reorganization makes it possible to concentrate the warehouse on one level, which improves operational efficiency, and to move the enoteca to the inner courtyard to enhance the garden and create a spacious outdoor area.
The proximity to the people, the project and the surroundings allowed us to take a closer look and experience the site. We got to know the local craftspeople and collaborated with them. We were not an external architectural office, but an integral part of everyday life on the construction site. This allowed us to establish atypical work processes and work with local materials: Sand from the glacier sand pit, lime putty and hemp bricks from the surrounding area. We reused practically all of the demolition materials. New shelves, walls and tables were created from the old false floors and furnishings of the wine shop. We claim that the history can be felt in the materials and surfaces, the patina and the traces of manual labour radiate something that may have gone out of fashion, but has every reason to return.
Alessio De Gottardi, Dzulija Jakimovska, Béla Dalcher, David Moser, Lian Liana Stähelin, Matthias Müller Klug
with Dario Bianchi, Roger Messerli, Grace Prince, Luca Locatelli
for Chiericati Vini SA
Building physics: Jordan Kuoto
Lighting design: Lucespazio
Sustainability consulting: Trebogea
Contractors: Nembrini & Co. SA, Color Project S.R.L, Molteni & Co. SA, Tarcisio Rossi Sagl, Crotta Elia Sagl, Munari SA, Conti falegnameria
Photography: Alessio De Gottardi









Runway Rain is an immersive intervention as part of Lausanne Jardins 2024 that reimagines the relationship between the built environment, nature, and urban life. Located on the iconic rooftop of the Piscine de Bellerive, the installation blends the historical legacy of modernist architecture with a new ecological vision. The project explores the festival’s overarching theme “Between the Water and Us” by introducing a delicate, mobile irrigation system that transforms the rooftop into a dynamic and productive garden. Water becomes the link between leisure and cultivation, nurturing both plants and bathers alike. The once-forgotten terrace, a relic of the past formerly promising light, air, hygiene and movement, is reactivated as a site of collective engagement.
Due to the immersive garden experience, the boundaries between recreational space and urban farming become blurred. And the possibility to farm in a place where water’s dual role as both life-giver and cooling agent, fosters a new understanding of sustainability and collectivity.
By revitalizing the space and inviting the public to participate in its cultivation, Runway Rain embodies an optimistic vision of coexistence between consumers and producers, transforming a currently neglected site into a vibrant, interactive experience of water, nature, and urban life. Over the course of the festival, the site hosted a variety of events, peaking in a performative dinner where roller skating and live cooking offered visitors yet another way to experience the space.
Alessio De Gottardi, studio OLAC, Fabian Tobias Reiner and Sven Högger
for Lausanne Jardin 2024 - between the water and us
in collaboration with SPADOM
photography: Sven Högger and Geraldine Recker









The store design for Lavie materializes as a spatial structure that brings together exhibition, product storage, and office use within a single framework. Movable and adaptable elements within the shelving system allow the product layout to be reconfigured flexibly – enabling the spatial structure to transform with each new collection. Worktables are integrated on the rear side as dedicated workspaces. The installation is composed of various industrially manufactured storage and construction systems, similar to those used in Lavie’s warehouses, and forms a deliberate contrast to Lavie’s colorful and soft textiles. All components are reused.
David Moser, Lian Liana Stähelin, Otto De Vylder, Matthias Müller Klug, Thierry Vuattoux, Alessio De Gottardi
for lavie
Photography: Luca Bazelli, Nicolas Duc









Since 2023, various artists and cultural practitioners have been working in the heritage-listed Zeughaus 4 on the Zurich Kasernenareal. With the departure of the cantonal police, the area has become accessible to the public and is in interim use until 2026. From January-May 2023, the architecture collective squadra created workspaces for the Maison Shift association on the upper floor of the Zeughaus. The rooms serve as a meeting and exchange space for fashion designers that are driving the transition to a sustainable textile industry. The concept of sustainability has been incorporated into the planning and construction process carried out by the architects themselves, which has also enabled a flexible planning process and the consistent reuse of building components. Materials that were found on site were reused: The panels from the former shooting range serve as shelves and counters. Previous tire storage racks were turned into walls and furniture. All components can be removed and passed on.
Alessio De Gottardi, David Moser, Lian Liana Stähelin, Luca Bazelli and Thierry Vuattoux
with Andrea De Gottardi, Ella Eßlinger, Grace Oberholzer, Jasper Engelhardt, Julian Märkel, Norma Clematide, Romain Iff, Sophie Keel
for Maison Shift
Photography: Alessio De Gottardi, David Schönen, Luca Bazelli











The Château de Dompierre building complex lost its function as an agricultural settlement in the 20th century. The project consists of targeted interventions in the existing buildings and their surroundings. The goal is to restore the ecological balance that once reigned on the site and revitalize it through various complementary uses: the practice of permaculture, the creation of an exchange space where conferences and workshops can be organized in nature, as well music and art residencies.
Alessio De Gottardi and A.A Architecte Associe
with Dzujlia Jakimovska, Vasco Medici, Magdalena Talarczyk, Matteo Motorselli
for Château de Dompierre
Permaculture design: Andrej Steinauer and Sereina Stähli









The rural house in Châtillon was built in the 18th century as the first building in the village. It embodies the traditional rural architecture of its time and is typical of the region. The exterior is listed in the heritage inventory of the Canton of Fribourg. Until the 1970s, it was inhabited by an old lady and her goats, which warmed the house from the cellar. The living space consisted of a kitchen, a living room and a bedroom. The attic with its crippled hipped roof served as a hay store and drying room and was accessed by a staircase from the outside. Since then, the house has been used as a weekend domicile by the owner's family from Basel. The interior conversion was intended to make the house more homely, provide access to the attic and preserve the building in the long term. The wooden façade in the attic can be dismantled as shutters. The external appearance of the building is thus retained in its entirety. Traditional, local materials were used for the conversion.
Matthias Müller Klug
with Lucas Vidensky, Alessio De Gottardi











The conversion was a balancing act between a shared vision and the need to always adapt and react to the found substance. Together with local craftsmen, many friends and students who wanted to gain practical construction experience, we were working on Casa Giuseppina for four summers. The many people involved inhabit the house. We are in dialogue with the locals of Mosogno di Sotto, how to treat other abandoned houses and in which way we can contribute to the commons of the settlement.
Lian Liana Stähelin, Isabel Lehn-Blazejczak and Florian Stieger
with Ljubica Arsic, Caspar Bultmann, Jonas Butscher, Gülsah Canli, Olivia Leah Eckell, Jasper Engelhardt, Carlo Erzinger, Valeria Falletta, Daniel Fuchs, Kathrin Füglister, Cindy Gloggner, Agustin Jacky, Sarah Jacky, Jonas Jakob, Radovan Jovicic, Nora Klinger, Cédric Moser, David Moser, Tizian Naterop, Anna Schudel, Moritz Schudel, Marie Seeger, Sarah Silbernagel, Jonas Stähelin, Peter Stieger, Michele Tortelli and Raphael Ziltener.
Photography: Dario Bosio, Pierre Marmy











The village of Mosogno di Sotto is set off the road and has more houses than inhabitants. Detached from the medieval village center stands the former mill: the 'Casetta'. Together with many friends and local craftsmen, the abandoned building was transformed into a modest living quarter, where one lives with the seasons. The building process was a balancing act. All building materials had to be carried down on foot or flown in by helicopter. The constant presence on site made it possible to make constant adjustments to the existing building fabric and to include components that did not urgently need to be replaced in the reconstruction. Only the most essential things were brought into the village.
Luca Bazelli,Lian Liana Stähelin
with David Moser, Grace Oberholzer, Alessio De Gottardi, Jasper Engelhardt , Kaspar Looser, Béla Dalcher, Matthias Müller Klug, Cédric Moser, Sami Zattal, Jakub Dworak, Jonathan Egli, Florian Stieger und Isabel Lehn-Blazejczak
Photography: Dario Bosio, Pierre Marmy






The Kulturlokal Schwarzer Peter is a non-commercial, inclusive, creative and meeting place led by the Verein für Gassenarbeit Schwarzer Peter on the Lysbüchelareal in Basel. It is run participatively all year round together with visitors from Schwarzer Peter and volunteers from the arts and music scene in Basel. Cultural events such as exhibitions, concerts and workshops are offered to the public. The entire infrastructure can be used free of charge by the visitors of the Gassenarbeit and all interested parties. The cultural venue is designed as a temporary modular building made of wooden and shipping containers. The elements can be easily dismantled and are dimensioned for the size of lorries so that the building can easily be moved to other sites in the future. The windows and doors come from demolished buildings and thanks to reusable screw foundations there is no construction waste.
Matthias Müller Klug and Lian Liana Stähelin
in collaboration with Vesna Petrovic, Kevin Peterhans, Willi Moch, Naima Heim
for Verein für Gassenarbeit Schwarzer Peter, Stefanie Twerdy






Our project captivates neither by a fancy construction nor by fancy materials, but much more by the empathy to which the long stay in a completely foreign area has brought us. We didn’t meet many people out there, but the few encounters were characterized by great sincerity and honesty. This has led us to this reserved, yet respectful design that tries to connect local tradition and needs. We looked around and considered what was really needed and what materials were available. The leather comes from a sheep truck that crashed in an accident. The wood was taken from the fences that divides the area into possession in a country where there was once no property.
Through contacts with nature, sceneries and their inhabitants, we seek to inspire people to reflect on the complex social and economic disputes that mark the agenda of the Mapuche-Tehuelche people until today. There is no future in architecture without a conciliatory memory between peoples in conflict.
Matthias Müller Klug and Alessio De Gottardi
in collaboration with Campo Abierto
longlisted Dezeen Awards 2020
selection Milano Design Film Festival 2021